España, Málaga
Preparations for the project:
Urban Planning analysis
Architectural Concept Planning
Engineering project
Visualisation & Animation
DESIGN INTERIOR
Working documentation
ENGINEERING
+
+
+
+
+
+
+
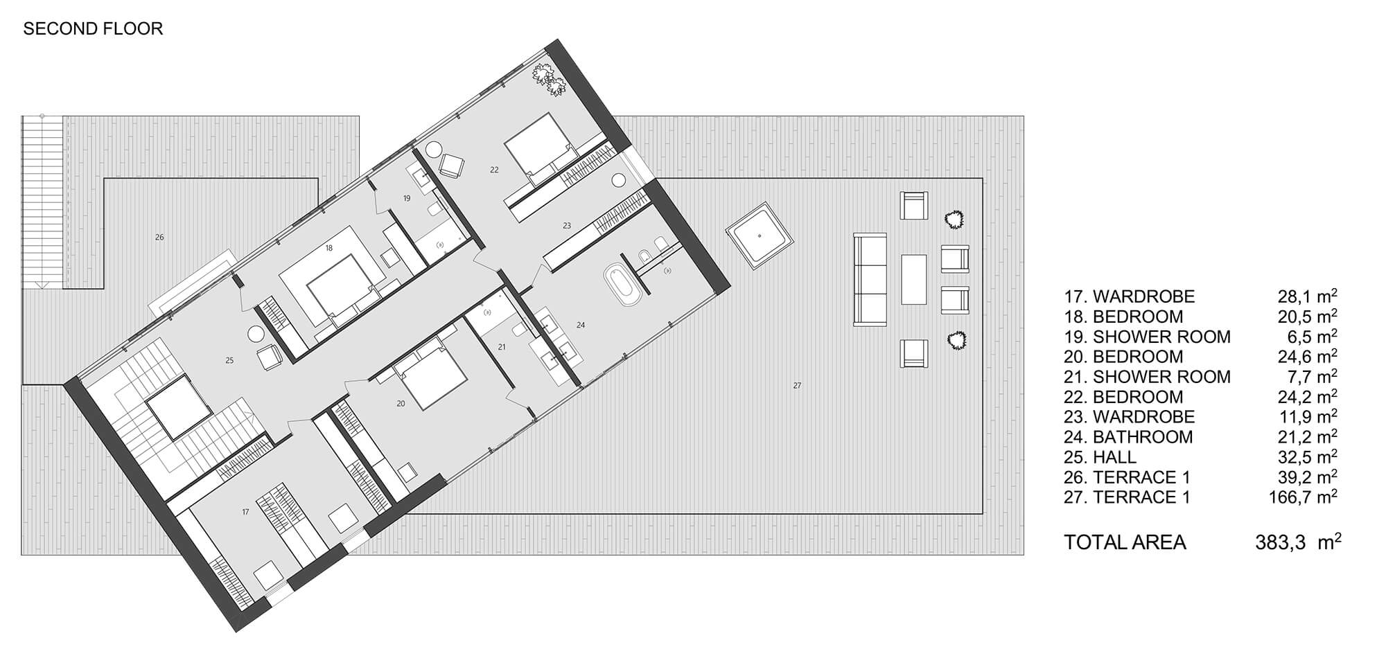
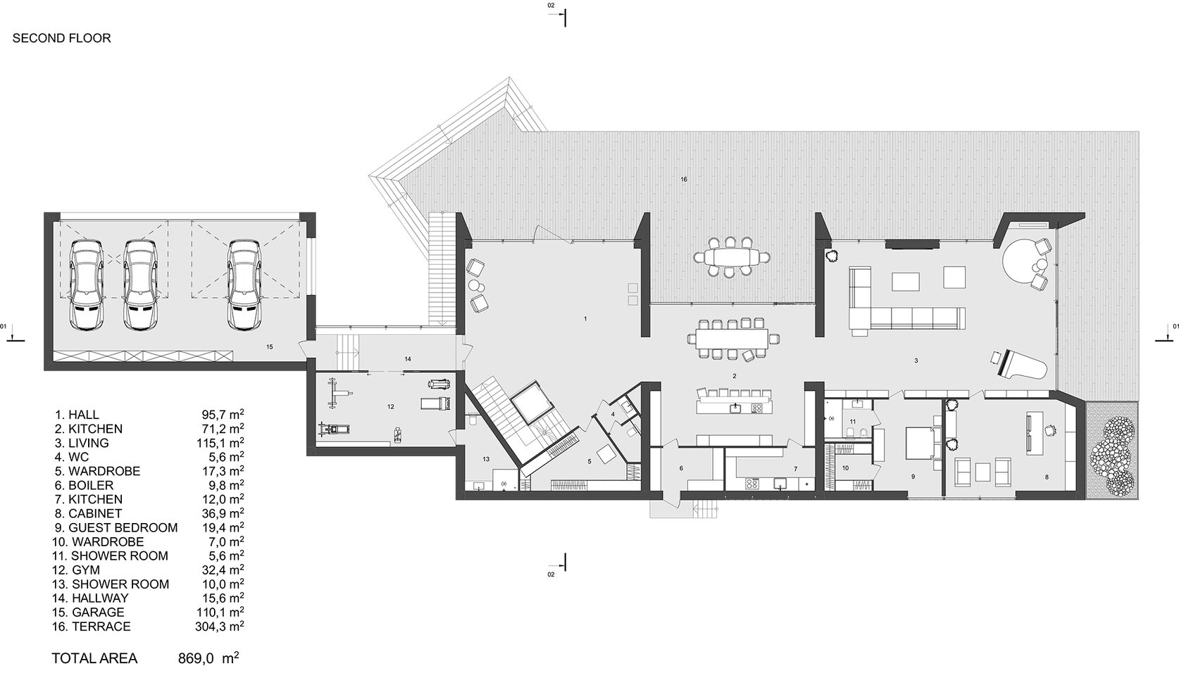
Villa de lujo en España, Marbella.
El área del terreno es de 3 300 m2. Tiene un rico paisaje. Zona de paddock, piscina y patio. Arquitectura de alta tecnología. Cubismo, dinamismo y funcionalidad, 4 dormitorios, Amplio dormitorio y guardarropa con baño, Gimnasio.
Piano de cola en el salón para fiestas y disfrutar junto a una copa de vino. Amplia oficina para reuniones y trabajo
Todas las habitaciones son amplias y luminosas y, lo que es más importante, hay mucho espacio para acomodar una colección de automóviles y motocicletas.
El área total de la casa es 1251.29m2
ARCHITECTURE
 
 
 
 
 
 
 
 
 
 
 
 
INTERIOR